check

Unieke maatwerk Douglas constructies Onze showroom is iedere zaterdag geopend Direct offerte via 3D-configurator

Beschrijving

Tuinkantoor Blomet | Wanddikte 45 mm

Modern en ruim tuinkantoor met plat dak

Het tuinkantoor Blomet combineert een strak modern design met optimaal comfort en functionaliteit. Dankzij de royale afmetingen en slimme indeling creëert u eenvoudig een professionele werkplek in uw eigen tuin, perfect om werk en privé gescheiden te houden.

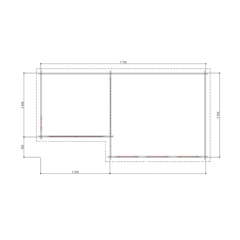
Aan de voorzijde bevindt zich een aparte ontvangstruimte met een stijlvolle inham van 95 cm. Deze ruimte is voorzien van een grote aluminium schuifdeur en een verticaal vast raam aan de linkerzijde, waardoor er veel natuurlijk licht binnenvalt. Aansluitend vindt u een ruime open bureauruimte met twee aluminium uitzetramen voor extra ventilatie en daglicht.

Onze moderne houten tuinkantoren bieden een rustige werkplek aan huis, zonder in te leveren op comfort of uitstraling. De hoogwaardige aluminium ramen en deuren zijn uitgerust met isolerend HR-glas, zodat u het hele jaar door comfortabel kunt werken.

Het tuinkantoor is vervaardigd uit kwalitatief Noord-Europees vurenhout, PEFC-gecertificeerd en geleverd met authenticiteitscertificaat. Het platte dak is afgewerkt met duurzame EPDM-rubber dakbedekking inclusief aluminium afwerkingsprofielen. Standaard wordt deze constructie geleverd met een complete dakgotenset.

Pluspunten op een rij:

  • Modern tuinkantoor met plat dak

  • Aparte ontvangstruimte met schuifdeur en vast raam

  • Grote open werkruimte met aluminium uitzetramen

  • HR-isolerend glas in aluminium ramen en deuren

  • PEFC-gecertificeerd Noord-Europees vurenhout

  • EPDM-dakbedekking met aluminium afwerking

  • Inclusief dakgotenset

Creëer eenvoudig een comfortabele, stijlvolle werkplek in uw tuin met tuinkantoor Blomet.

Tuinkantoor Blomet 775 x 395 cm

Categorie: ,
Tuinkantoor/kamer met een plat dak Gemaakt van kwalitatief Noord-Europees vurenhout. Inclusief: 1 Aluminium schuifdeur. 1 Vaste aluminium ramen 3 Aluminium draai kiep ramen EPDM-folie Aluminium randafwerking (daktrim) Dakgootset ( ramen en deuren voorzien van isolatieglas ) Wandbalk dikte: 45 mm

 17.999,00 incl. btw

Stel hieronder jouw product samen

Google Reviews
Arjan die wijst

Vragen?

Altijd vrijblijvend advies op maat

Bezoek onze showroom

Montagevideo

Vraag hier simpel en snel jouw korting aan

Vul ons offerteformulier in en wij nemen zo snel mogelijk contact met je op. Wij streven er naar om jou binnen 3 (werk)dagen een passende offerte aan te bieden.

Door dit formulier in te vullen ga je akkoord met onze
Algemene Voorwaarden en Privacybeleid.
Arjan Barry begroeting

Vragen?

Stel ze gerust. 
Wij staan voor je klaar!

Bezoek onze showroom

Arjan die wijst
Arjan wijst naar beneden

Veelgestelde vragen

Wat zijn de voordelen van een tuinhuis?

Een tuinhuis biedt een groot aantal van voordelen, zoals extra ruimte in de tuin voor je spullen op te bergen, een plek om te ontspannen en tot rust te komen of als werkplek. Met een houten tuinhuisje kun je jouw tuin verfraaien en een plek creëren om buiten echt te ontspannen. Bovendien zijn tuinhuizen met overkapping ideaal voor het beschermen van tuinmeubelen tegen de regen en sneeuw.

Je kunt houten tuinhuisjes kopen bij Tuinartikelenoutlet! Bekijk onze diverse modellen zelfbouw bouwpakket tuinhuizen online voor een breed assortiment. Wij bieden ook maatwerk aan als je dat wenst, zodat je het tuinhuis kunt aanpassen aan jouw wensen en de plek in de tuin.

In Nederland en België heb je vaak geen vergunning nodig voor een tuinhuis, zolang het aan bepaalde afmetingen voldoet. Voor grotere tuinhuizen, zoals een tuinhuis met overkapping, kan het wel zijn dat je wel een vergunning nodig hebt. Controleer altijd de lokale regelgeving voordat je jouw tuinhuisje wilt kopen.

Een tuinhuis met plat dak heeft een strakke moderne uitstraling en is vaak eenvoudiger te bouwen. Een zadeldak daarentegen biedt meer ruimte en een klassieke look.

Ja, je kunt jouw tuinhuis zeker gebruiken als berging. Ons aanbod tuinhuizen zijn de perfecte oplossing om tuingereedschap, fietsen of andere spullen in op te bergen. Ons assortiment tuinhuisjes zijn ontworpen om multifunctioneel te zijn, zodat je ze kunt gebruiken voor verschillende doeleinden, ook voor je hobby of verzameling.

Houten tuinhuizen worden vaak gemaakt van verschillende soorten hout, waaronder grenen of douglas hout dat bekend staat om zijn duurzaamheid en mooie uitstraling. Onze tuinhuisjes zijn vervaardigd uit hoogwaardig hout, wat zorgt voor een lange levensduur en een natuurlijke uitstraling in jouw tuin. Heb je vragen? Neem dan gerust contact met ons!

De ruimte die je nodig hebt voor een tuinhuisje hangt af van het type en de grootte die je kiest. Het is vrijwel altijd mogelijk om het tuinhuis te plaatsen, maar het is belangrijk om rekening te houden met de afmetingen en de beschikbare ruimte in de tuin. Zorg ervoor dat er ook voldoende ruimte is voor toegang en onderhoud. Wij hebben tuinhuizen in diverse afmetingen en uitvoeringen.

Je kunt verschillende soorten tuinmeubelen combineren met jouw tuinhuis, afhankelijk van het gebruik. Denk aan comfortabele stoelen en tafels voor een plek om buiten te ontspannen, of stevige kasten voor het opbergen van tuingereedschap. Een overkapping creëert een ideale plek om jouw tuinmeubelen te beschermen tegen de sneeuw en andere weersinvloeden. Kijk jij ook al uit naar jouw project?

Barry met handen omhoog

Kom je er niet helemaal uit?

Bij Tuinartikelenoutlet.nl geloven we in advies dat écht past bij jouw situatie. Of je nu op zoek bent naar een compact tuinhuis, een stijlvolle overkapping of een complete buitenverblijfoplossing, wij staan voor je klaar met deskundige begeleiding.

Onze vakmannen nemen de tijd om jouw wensen te begrijpen en helpen je bij het maken van de juiste keuzes. Van ontwerp tot materiaalkeuze en praktische tips: samen zorgen we ervoor dat jouw tuinproject perfect aansluit op jouw stijl en behoeften.

Barry met handen omhoog